* Поиск по сайту Вверх Вниз



Начать новую тему Ответить на тему  [ Сообщений: 78 ]  На страницу Пред.  1, 2, 3, 4, 5, 6  След.
Автор Сообщение
 Заголовок сообщения: Re: Возможный вариант решения работы мультика без родной платы
СообщениеДобавлено: 21 мар 2015, 23:38 
Не в сети
Профи
Профи
Аватара пользователя

Зарегистрирован: 28 сен 2012, 00:48
Сообщения: 542
Тем: 34
Откуда: Новосибирск
Машина: Toyota Vista Ardeo
О машине: SV50 1998 старый добрый D4
Репутация: 539
Рекламные ссылки. Показывается только незарегистрированным пользователям


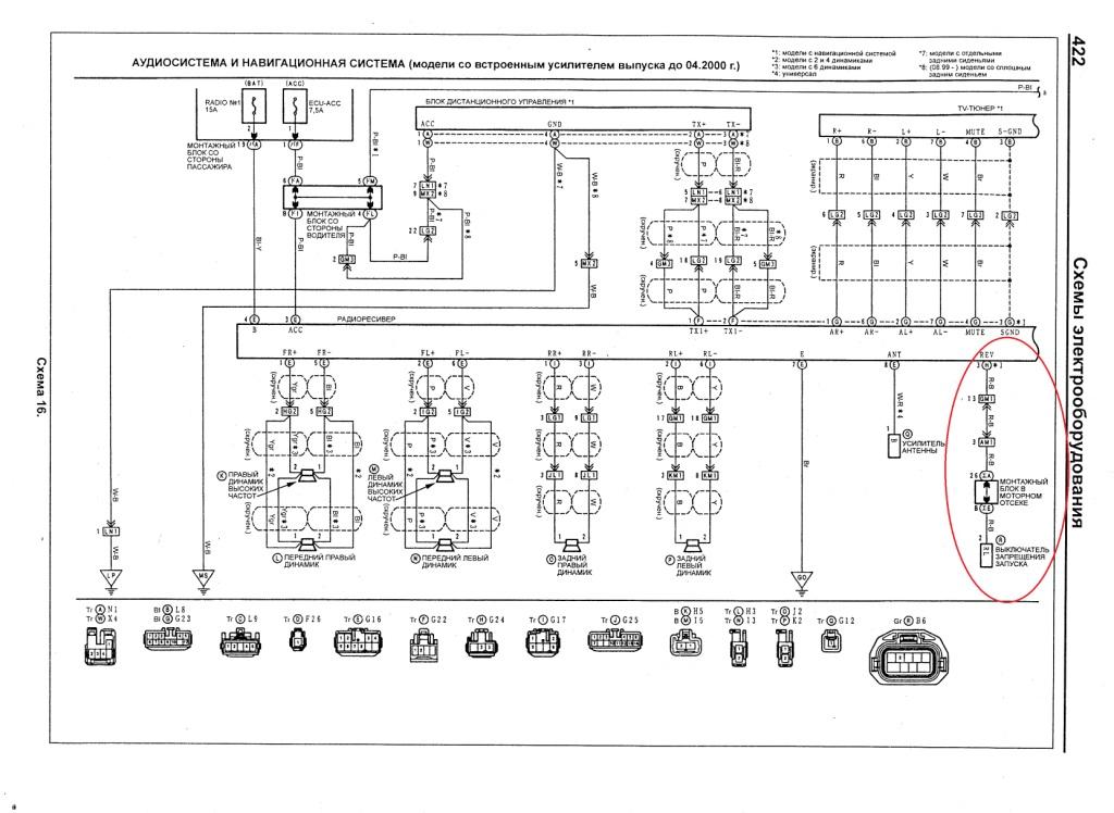
В общем, не хочет пускаться тюнер, вроде все как положено, питание на тюнер идет, АСС идет, масса есть, TX+ TX- с джостика идет, почему не пускается! кто знает за что отвечает вот это разьем магнитолы? может туда подать провод для включения дополнительных устройств от новой магнитолы?


Вложения:
Image-30.jpg
Image-30.jpg [ 108.2 КБ | Просмотров: 2419 ]
Вернуться к началу
 Профиль Отправить email  
Ответить на тему 

 Заголовок сообщения: Re: Возможный вариант решения работы мультика без родной платы
СообщениеДобавлено: 23 мар 2015, 00:23 
Не в сети
Гуру
Гуру
Аватара пользователя

Зарегистрирован: 15 май 2014, 22:00
Сообщения: 2182
Тем: 43
Откуда: Красноярск
Блог: Посмотреть блог (2)
Машина: Toyota Vista Ardeo
О машине: SV55.5, 3S-FE, А243F, 4WD ATC+Torsen
Репутация: 3493
Sanjabb писал(а):
Вот такая у меня магнитола! резистор на 58 Ом! все работает!

На сколько я помню если отключить майфун мультик и так будет работать, без всяких резисторов, пока акумм не отключишь. Попробуй со своим резистором клему скинуть, а потом на место одеть, заработает после такой процедуры мультик или нет? :rus: :rus: :rus:

_________________
Ardeo PRO version


Вернуться к началу
 Профиль Отправить email  
Ответить на тему 
 Заголовок сообщения: Re: Возможный вариант решения работы мультика без родной платы
СообщениеДобавлено: 23 мар 2015, 01:17 
Не в сети
Профи
Профи
Аватара пользователя

Зарегистрирован: 28 сен 2012, 00:48
Сообщения: 542
Тем: 34
Откуда: Новосибирск
Машина: Toyota Vista Ardeo
О машине: SV50 1998 старый добрый D4
Репутация: 539
Без этого резистора джостик не работал! Завтра попробую скину клеймы, отпишусь! По схеме выше можете подсказать, что за провод и где этот механизм запрещения запуска и еще вопрос запуска чего?


Вернуться к началу
 Профиль Отправить email  
Ответить на тему 
 Заголовок сообщения: Re: Возможный вариант решения работы мультика без родной платы
СообщениеДобавлено: 23 мар 2015, 09:32 
Не в сети
Механик - интеллектуал, Моторист - теоретик
Аватара пользователя

Зарегистрирован: 15 ноя 2013, 11:09
Сообщения: 469
Тем: 6
Откуда: Новосибирск
Блог: Посмотреть блог (1)
Машина: Toyota Vista Ardeo
О машине: SV50
Репутация: 550
Ты же говорил что у тебя мафон рестайловый стоит, а схему привел дорестайловую... Что то здесь не так:)

_________________
Toyota Vista Ardeo 2000г.в., 3S-GTE, 4WD.
Toyota Chaser, 1997г.в., 1jz-ge, 2wd.
ЗЫ Лучшая машина - та, у которой есть потенциал!:)


Вернуться к началу
 Профиль Отправить email  
Ответить на тему 
 Заголовок сообщения: Re: Возможный вариант решения работы мультика без родной платы
СообщениеДобавлено: 23 мар 2015, 10:18 
Не в сети
Профи
Профи
Аватара пользователя

Зарегистрирован: 28 сен 2012, 00:48
Сообщения: 542
Тем: 34
Откуда: Новосибирск
Машина: Toyota Vista Ardeo
О машине: SV50 1998 старый добрый D4
Репутация: 539
да мафон рестайловый, а машина 1998г, я сам переделывал, ставил мультик от рестайла, когда мафон накрылся!


Вернуться к началу
 Профиль Отправить email  
Ответить на тему 
 Заголовок сообщения: Re: Возможный вариант решения работы мультика без родной платы
СообщениеДобавлено: 23 мар 2015, 10:36 
Не в сети
Механик - интеллектуал, Моторист - теоретик
Аватара пользователя

Зарегистрирован: 15 ноя 2013, 11:09
Сообщения: 469
Тем: 6
Откуда: Новосибирск
Блог: Посмотреть блог (1)
Машина: Toyota Vista Ardeo
О машине: SV50
Репутация: 550
ну так погляди на рестайловой схеме, может там такого разьема и нет

_________________
Toyota Vista Ardeo 2000г.в., 3S-GTE, 4WD.
Toyota Chaser, 1997г.в., 1jz-ge, 2wd.
ЗЫ Лучшая машина - та, у которой есть потенциал!:)


Вернуться к началу
 Профиль Отправить email  
Ответить на тему 
 Заголовок сообщения: Re: Возможный вариант решения работы мультика без родной платы
СообщениеДобавлено: 25 мар 2015, 20:42 
Не в сети
Гуру
Гуру
Аватара пользователя

Зарегистрирован: 15 май 2014, 22:00
Сообщения: 2182
Тем: 43
Откуда: Красноярск
Блог: Посмотреть блог (2)
Машина: Toyota Vista Ardeo
О машине: SV55.5, 3S-FE, А243F, 4WD ATC+Torsen
Репутация: 3493
Sanjabb писал(а):
Без этого резистора джостик не работал! Завтра попробую скину клеймы, отпишусь! По схеме выше можете подсказать, что за провод и где этот механизм запрещения запуска и еще вопрос запуска чего?

Дак, пробовал клемму скидывать с резистором работает или нет мультик и джойстик?

_________________
Ardeo PRO version


Вернуться к началу
 Профиль Отправить email  
Ответить на тему 
 Заголовок сообщения: Re: Возможный вариант решения работы мультика без родной платы
СообщениеДобавлено: 25 мар 2015, 21:06 
Не в сети
модератор
Аватара пользователя

Зарегистрирован: 27 окт 2008, 04:00
Сообщения: 12728
Тем: 15
Откуда: Вятка
Машина: др. Японка
О машине: Toyota Prius 51
Репутация: 2381
Sanjabb писал(а):
По схеме выше можете подсказать, что за провод и где этот механизм запрещения запуска и еще вопрос запуска чего?
Так называется селектор выбора передач на АКПП, запрет запуска двигателя.

_________________
Vista Ardeo 1999, SV50, D4, Мультик, TV...


Вернуться к началу
 Профиль Отправить email  
Ответить на тему 
 Заголовок сообщения: Re: Возможный вариант решения работы мультика без родной платы
СообщениеДобавлено: 27 мар 2015, 02:15 
Не в сети
Профи
Профи
Аватара пользователя

Зарегистрирован: 28 сен 2012, 00:48
Сообщения: 542
Тем: 34
Откуда: Новосибирск
Машина: Toyota Vista Ardeo
О машине: SV50 1998 старый добрый D4
Репутация: 539
Vyatich писал(а):
Sanjabb писал(а):
По схеме выше можете подсказать, что за провод и где этот механизм запрещения запуска и еще вопрос запуска чего?
Так называется селектор выбора передач на АКПП, запрет запуска двигателя.

Спасибо!
В общем с резистором в 68 Ом воткнутым в TX+ TX- джостк работает, а тв тюнер включаться не хочет, потому что когда магнитола выключена сопротивление между этими контактами на магнитоле 68 ом, но когда нажимаем кнопку тв что бы включить тв тюнер, у нас должна включиться и магнитола! При включении магнитолы на этих контактах появляется питание по 2,5 вольта на каждом, т.е магнитола я так понимаю передает по шине данных сигнал что она готова воспроизводить звук и можно включать тв тюнер! ну а так как сигналов этих ...уй, то и телика соответственно тоже! поковырялся я с этим и сделал как все, выдернул плату и спрятал её за бардачком, питание вывел в AUX магнитолы! единственное что я доработал, так это в коробочку куда спрятал плату запихал небольшой динамик из сломанной машинки на пульт управлении (сынуля запчастями снабжает :D ) и припаял его к выходу переднего правого динамика, что бы был звук ПИП при нажатии на кнопки пульта, без него как то не привычно! фотки завтра выложу коробушки и магнитолы!


Вернуться к началу
 Профиль Отправить email  
Ответить на тему 
 Заголовок сообщения: Re: Возможный вариант решения работы мультика без родной платы
СообщениеДобавлено: 04 май 2015, 22:57 
Не в сети
Механик - интеллектуал, Моторист - теоретик
Аватара пользователя

Зарегистрирован: 15 ноя 2013, 11:09
Сообщения: 469
Тем: 6
Откуда: Новосибирск
Блог: Посмотреть блог (1)
Машина: Toyota Vista Ardeo
О машине: SV50
Репутация: 550
Sanjabb писал(а):
В общем с резистором в 68 Ом воткнутым в TX+ TX- джостк работает, а тв тюнер включаться не хочет, ...

Подтверждаю, с резистором на 68 Ом все работает кроме телека, но мне он и не нужен:) Разве что ПИПа не хватает:)))

Супер!:) С простой перемычкой не работает, с резистором 100+ ом не работает, а 68 Ом - работает!:) Магия:)

_________________
Toyota Vista Ardeo 2000г.в., 3S-GTE, 4WD.
Toyota Chaser, 1997г.в., 1jz-ge, 2wd.
ЗЫ Лучшая машина - та, у которой есть потенциал!:)


Вернуться к началу
 Профиль Отправить email  
Ответить на тему 
 Заголовок сообщения: Re: Возможный вариант решения работы мультика без родной платы
СообщениеДобавлено: 12 май 2015, 16:37 
Не в сети
Любитель
Любитель
Аватара пользователя

Зарегистрирован: 24 ноя 2012, 14:02
Сообщения: 24
Тем: 1
Откуда: г.Астрахань
Машина: Toyota Vista Ardeo
О машине: SV55-3SFE-4WD
Репутация: 0
подскажите я чет не поняла у меня нет магнитолы она сламалась я ее выкинула если я поставлю резистор на 68 Ом заработает хотя бы табло с тахом


Вернуться к началу
 Профиль Отправить email  
Ответить на тему 
 Заголовок сообщения: Re: Возможный вариант решения работы мультика без родной платы
СообщениеДобавлено: 12 май 2015, 17:09 
Не в сети
Профи
Профи
Аватара пользователя

Зарегистрирован: 28 сен 2012, 00:48
Сообщения: 542
Тем: 34
Откуда: Новосибирск
Машина: Toyota Vista Ardeo
О машине: SV50 1998 старый добрый D4
Репутация: 539
TOMA писал(а):
подскажите я чет не поняла у меня нет магнитолы она сламалась я ее выкинула если я поставлю резистор на 68 Ом заработает хотя бы табло с тахом

если рестаил 2000-2003г, то да!


Вернуться к началу
 Профиль Отправить email  
Ответить на тему 
 Заголовок сообщения: Re: Возможный вариант решения работы мультика без родной платы
СообщениеДобавлено: 01 мар 2016, 13:53 
Не в сети
Любитель
Любитель
Аватара пользователя

Зарегистрирован: 03 окт 2015, 21:25
Сообщения: 27
Откуда: Новосибирск
Машина: Toyota Vista Ardeo
О машине: SV50 ; 3S-FSE
Репутация: 0
У меня не получилось, магнитола 500, дорестайл 98год. Может я не те резисторы взял?


Вернуться к началу
 Профиль Отправить email  
Ответить на тему 
 Заголовок сообщения: Re: Возможный вариант решения работы мультика без родной платы
СообщениеДобавлено: 01 мар 2016, 17:47 
Не в сети
Профи
Профи
Аватара пользователя

Зарегистрирован: 04 сен 2011, 15:49
Сообщения: 650
Тем: 3
Машина: Toyota Vista Ardeo
О машине: SV-50 3S-не D-4
Репутация: 570
Danil580 писал(а):
У меня не получилось, магнитола 500, дорестайл 98год. Может я не те резисторы взял?

На сколько я понял, резистор помогает только на рестайле, и нужен именно 68Ом.


Вернуться к началу
 Профиль  
Ответить на тему 
 Заголовок сообщения: Re: Возможный вариант решения работы мультика без родной платы
СообщениеДобавлено: 03 мар 2016, 01:33 
Не в сети
Профи
Профи
Аватара пользователя

Зарегистрирован: 28 сен 2012, 00:48
Сообщения: 542
Тем: 34
Откуда: Новосибирск
Машина: Toyota Vista Ardeo
О машине: SV50 1998 старый добрый D4
Репутация: 539
+- 10 канает по моему я 57 Ом пробовал работает!


Вернуться к началу
 Профиль Отправить email  
Ответить на тему 

Показать сообщения за:  Поле сортировки  
Начать новую тему Ответить на тему

 [ Сообщений: 78 ]  На страницу Пред.  1, 2, 3, 4, 5, 6  След.





* Поиск по сайту Вверх Вниз

Кто сейчас на конференции

Сейчас этот форум просматривают: нет зарегистрированных пользователей и гости: 14


Вы не можете начинать темы
Вы не можете отвечать на сообщения
Вы не можете редактировать свои сообщения
Вы не можете удалять свои сообщения
Вы не можете добавлять вложения

Найти:
Перейти:  
Текущее время: 30 апр 2026, 09:17
Часовой пояс: UTC + 7 часов
Powered by phpbb. (c) VistaClub.ru.    * Статистика